We are delighted to share that three talented students from the Wilson School of Design’s Interior Design program have been recognized at the AWMAC Awards of Excellence 2025 for their outstanding work in millwork design and detailing. We would like to congratulate our students Emily Senko and Erika Goguen for recieveing honourable mentions, and to Emily Mckenzie-Djordjevich for being selected as the award winner. Each of these students demonstrated exceptional skill and creativity through their detailed design work, developed as part of a retail project in their senior studio course.
Hosted by the Architectural Woodwork Manufacturers Association of Canada (AWMAC) B.C. Chapter, the 34th Annual Awards of Excellence took place on October 2, 2025, at the Vancouver Convention Centre West. The event brought together professionals, educators, and students to celebrate excellence in architectural woodworking across the province. The AWMAC BC Chapter supports the Wilson School of Design’s Interior Design program by presenting one student each year with a certificate and financial award in recognition of excellence in architectural wood drawings. The selection process begins with faculty members nominating a shortlist of students based on the quality of their project work. Final decisions are then made by a panel of experts and members of the AWMAC BC Chapter. The award includes a $500 prize, recognizing students who display outstanding skill and attention to detail in their design of a retail project.


Photo credits to AWMAC BC
As a practicing architect and also an educator for the KPU Wilson School of Design, I was honoured to have been invited to present our students with their awards at the recent AWMAC event. It is especially meaningful, as I am acutely aware of the rigour and professionalism that the Interior Design program provides our students. They have incredible access to industry partners and resources, and seeing them be recognized by the industry for their passion and dedication is heartwarming.
Breanna Mulhall — Interior Design Professor, Wilson School of Design
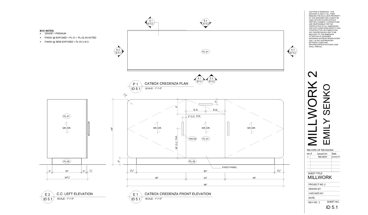
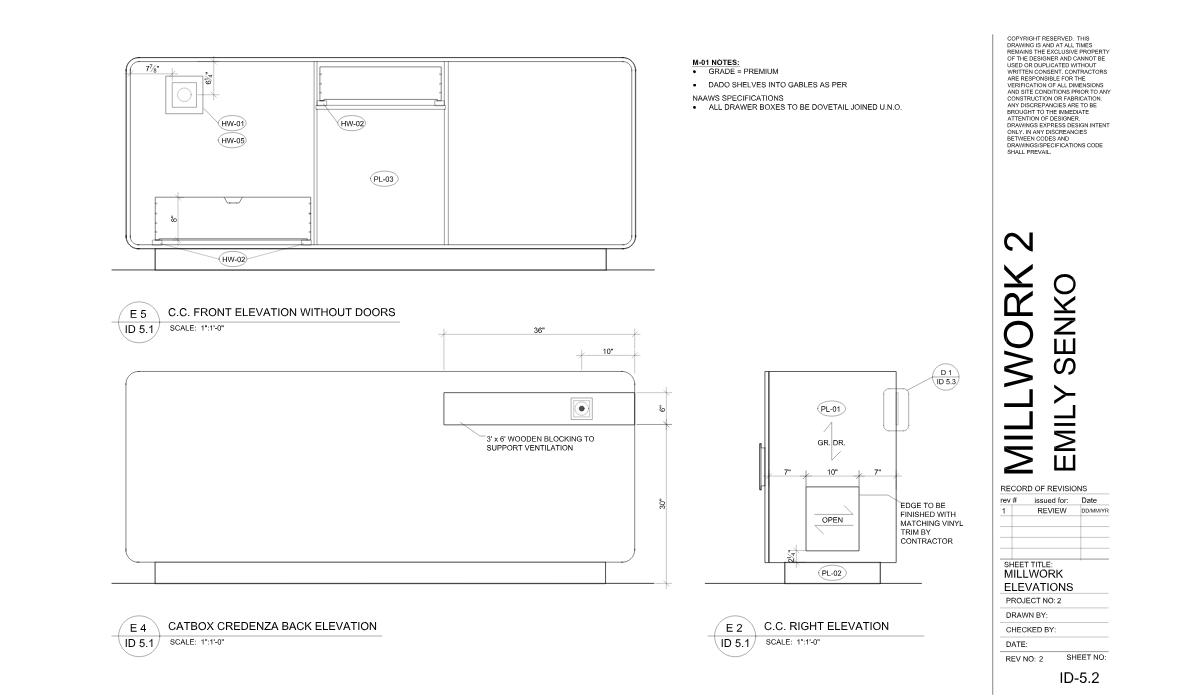
Emily Senko, a Wilson School of Design student, says being recognized at the AWMAC Awards of Excellence was an incredible honour.
“It really was such an honour to be considered at all, as one of three chosen from my cohort for the award, I was really grateful to have the opportunity to go to this amazing award ceremony among people who are professionals in the field of something we worked on for such a short amount of time! While I did not win- many congratulations to Emily MD for her award- AWMAC made such an effort in making all of us students feel welcome and part of this wonderful ceremony, including framing our Honourable Mention certificates which is really cool to have and look back on.”

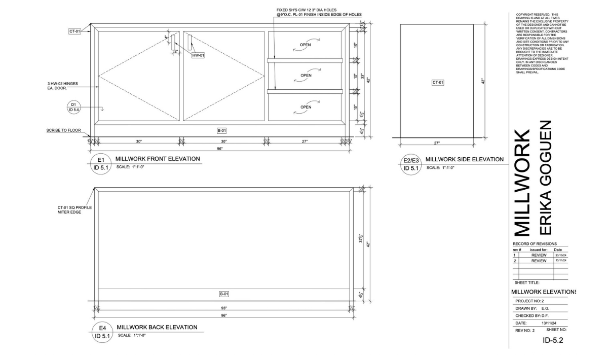
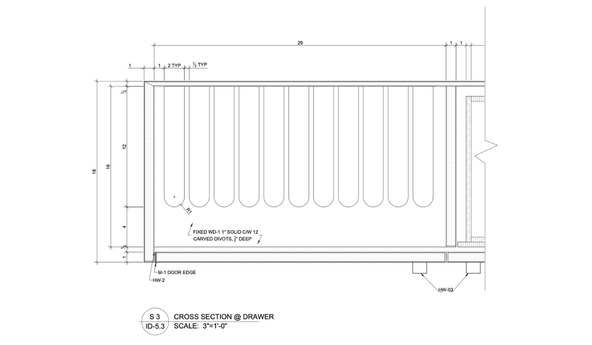
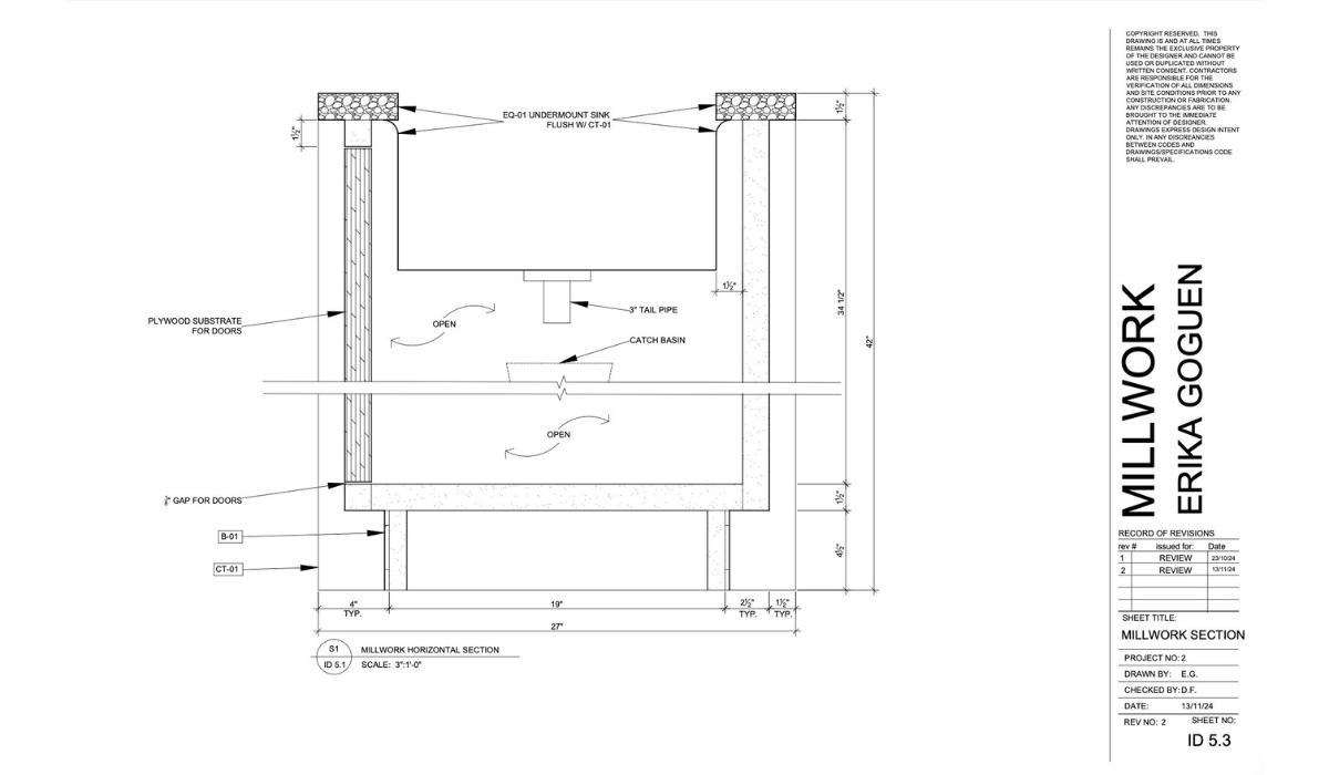
For Erika Goguen, the recognition was a meaningful reflection of her hard work and dedication throughout the Interior Design program.
“Receiving this honourable mention truly means a great deal to me. My time in the Interior Design program at the Wilson School of Design has been filled with countless late nights, long hours, and an unwavering drive to do my best and create meaningful work. Being invited to the AWMAC Millwork event as an honourable mention recipient for an Award of Excellence was an incredible moment, especially given the prestige and respect AWMAC holds within the industry. This recognition reminds me that success isn’t only about taking first place, but about growth, perseverance, and being seen for the effort and heart you put into your work. It represents how far I’ve come and inspires me to keep striving, learning, and creating as I begin my journey as an interior designer.”

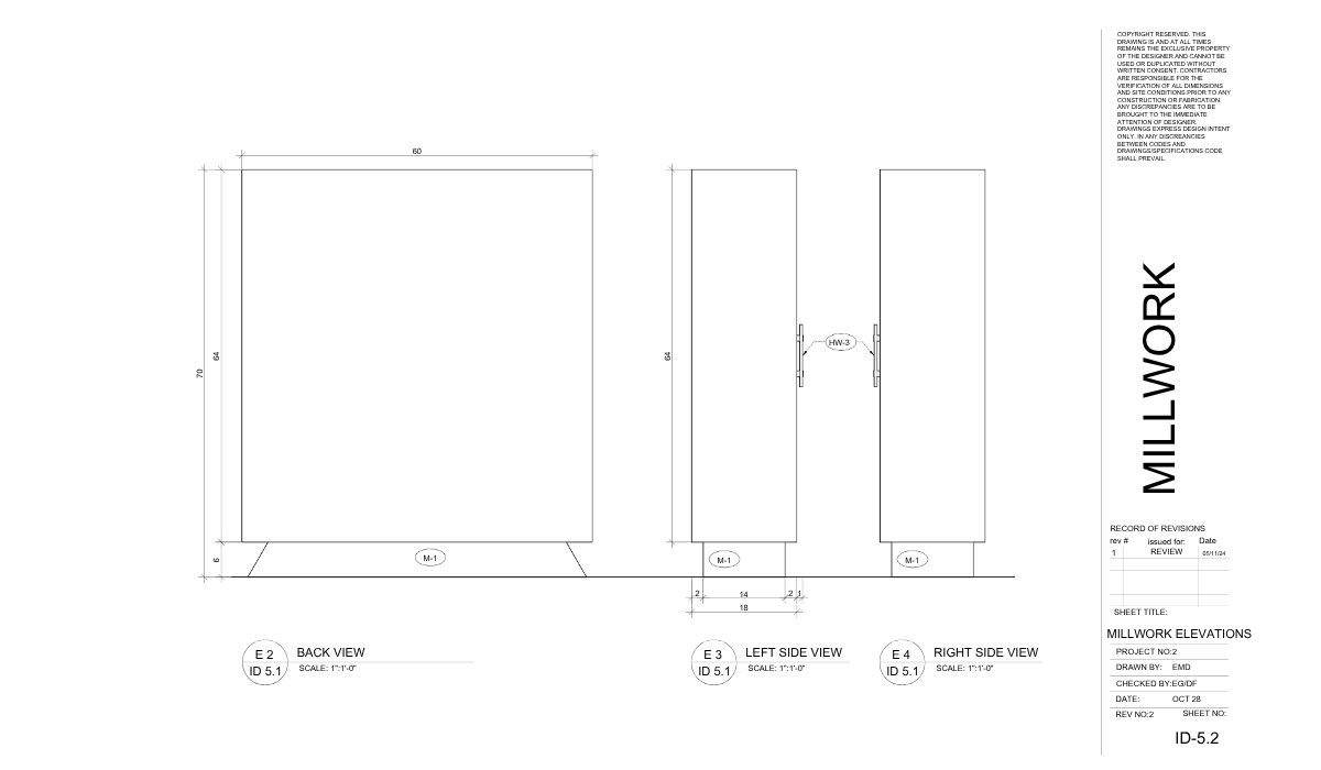
Emily Mckenzie-Djordjevich, who received the award, says the honour celebrates the care and precision at the heart of architectural woodworking.
“I’m deeply grateful to receive the AWMAC Student Award, an honour that celebrates the precision and care at the heart of architectural woodworking. Developing my custom wine cabinet drawing set reaffirmed how craftsmanship and high standards can elevate design intent into enduring, heirloom-quality pieces.” says Mckenzie-Djordjevich.
